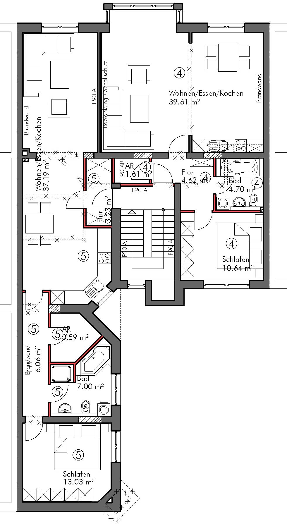
Die Wohnung befindet sich im 2. Obergeschoss eines gepflegten und ruhigen Mehrfamilienhauses. Mit ihren drei gut geschnittenen Zimmern bietet sie ausreichend Platz für die ganze Familie und ist besonders ideal für Familien mit Kindern.
Alle Räume sind bereits mit hochwertigem Laminat in Holzoptik sowie weißer Raufasertapete ausgestattet. Das moderne Badezimmer überzeugt mit einer komfortablen Dusche.
Die Vermietung erfolgt ausschließlich an Interessenten mit guter Bonität. Bei Interesse vereinbaren Sie gerne einen Besichtigungstermin mit mir.
Herzlich Willkommen in Ihrem neuen Zuhause!
Rufen Sie uns an und vereinbaren Sie einen Besichtigungstermin.